The Long Barn
This four-bedroom property is a beautiful example of how traditional design can merge with modern construction, taking inspiration from the surrounding area.
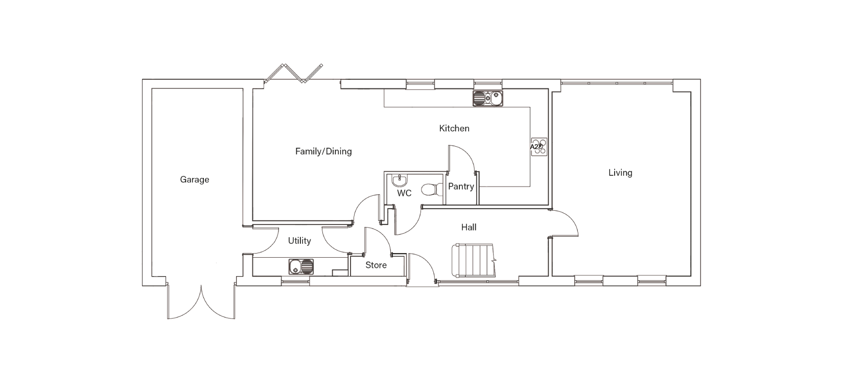
A reclaimed style of brick and a striking double-height glass frontage opens into a glazed entrance hallway with a vaulted ceiling. A downstairs cloakroom and a flexible utility space, which leads to the integral single garage, are situated to one side of the property and a large living room branches off from the other.
The open-plan kitchen / dining / family area are at the heart of the house. Natural light pours in from morning through evening and glazed bi-folding doors open to a landscaped garden and patio terrace, merging inside and out.
The kitchen is fitted with a range of appliances, inclusive of an AEG built-in double oven, a fully integrated dishwasher, a low-frost fridge freezer and an under-counter wine cooler.
Four bedrooms are situated on the first floor, two with an en-suite shower room. Building above the garage has enabled us to create a spacious principal bedroom, featuring a large dressing room and an en-suite. A family bathroom is further offset from the central gallery landing, which also includes a mezzanine deck for elevated views.
The Long Barn has private driveway parking for two cars, along with an electric car charging point and all of our homes in Rufforth are fitted with Air Source heat pumps.
Floor Plan
Floor plans are intended to give a general indication of the proposed property layout. Dimensions are for guidance only and plans are not to scale. All measurements are approximate. The specification, layout and finish of each property is subject to change. Photography and computer generated images are intended for illustrative purposes and should be treated as general guidance.
Key Features
- Beautiful brand new 4-bedroom detached barn style property discretely positioned within a semi rural North Yorkshire village close to York.
- Large living room, downstairs WC, utility room, integral garage and an open-plan kitchen and dining area with pantry, which leads to the ready-turfed rear garden.
- The kitchen incorporates a range of fitted wall, base and drawer units, integrated AEG appliances and space for dining and seating furniture.
- The Long Barn has 4 bedrooms - 2 en-suite. The principal bedroom has an en-suite shower room and dressing area and there are 3 further sizeable bedrooms.
- The Long Barn will be EPC rated Band B. Future-proof features include a low-carbon Air Source heat pump system and an electric car charging point.
Dimensions & Details
Family / Dining / Kitchen
9.54m x 4.26m / 31'3" x 13'11"
Living Room
4.49m x 5.95m / 14'8" x 19'6"
Garage
3.04m x 6.05m / 9'11" x 19'10"
Bedroom One
3.31m x 3.76m / 10'10" x 12'4"
Bedroom Two
3.84m x 3.04m / 12'7" x 9'11"
Bedroom Three
4.49m x 2.95m / 14'8" x 9'8"
Bedroom Four
3.59m x 3.04m / 11'9" x 9'11"
Bathroom
2.25m x 1.78m / 7'4" x 5'10"
Property Location
Specification
| The Long Barn (Hawthorn Fields) | |
|---|---|
| Bathroom | |
| Bath filler mixer tap with thermostatic shower and screen | • |
| Beautifully styled bathrooms designed by Abacus and featuring Villeroy and Boch and Hansgrohe Brassware, highly regarded and reputable branded sanitary ware | • |
| Choice of contemporary / traditional ceramic floor tiles | • |
| Choice of half wall tiling in a range of colours including chrome half height trim (full height around bath / shower) | • |
| Wall hung or pedestal mounted basin with chrome mixer tap | • |
| Wall hung WC pan with concealed cistern or close couple WC | • |
| White heated towel rail with electric dual fuel element | • |
| White Villeroy & Boch sanitary ware with optimum functionality and flawless design | • |
| En-suite (where applicable) | |
| Choice of contemporary / traditional ceramic floor tiles | • |
| Choice of half wall tiling in a selection of colours including chrome half height trim (full height around bath / shower) | • |
| Thermostatic shower with low profile shower tray and glass screen | • |
| Wall hung or pedestal mounted basin with chrome mixer tap | • |
| Wall hung WC pan with concealed cistern or close couple WC | • |
| White heated towel rail with electric dual fuel element | • |
| White Villeroy & Boch sanitary ware with optimum functionality and flawless design | • |
| External | |
| 1.8m high timber fencing (refer to site specific layout) | • |
| Black UPVC guttering and downpipes | • |
| Coloured composite front door with multi point locking system, white internal, Anthracite external colour | • |
| Front and rear external lights | • |
| Front garden turfed and landscaped | • |
| Garage with retractable steel door in Anthracite | • |
| Light and socket to garage, where applicable | • |
| Mode 3 electric car charging point | • |
| Modern PVC windows, white internal, cream external colour | • |
| Outside tap to rear garden | • |
| Turf to rear garden with patio (refer to site specific layout) | • |
| Heating & Electrics | |
| Air Source Heat Pump System with white panel radiators | • |
| Intruder alarm system with ground floor PIRs | • |
| LED down lighters to kitchen, bathroom, hall & en-suite (if applicable) | • |
| Provision for Fibre Broadband | • |
| Smoke / CO2 detectors | • |
| Internal Finishes | |
| Ceilings and walls finished in Dulux white emulsion throughout | • |
| Choice of contemporary / traditional tiled flooring to kitchen, WC, bathroom & utility / en-suite (if applicable) | • |
| Chrome electrical accessories (sockets / light switches) | • |
| Oak handrails / newels with glass panels to all staircases | • |
| Pre-finished oak veneered doors with chrome handles | • |
| Skirting and architrave finished in white gloss with matching window boards | • |
| Kitchen | |
| 1.5 bowl stainless steel under mount sink | • |
| AEG 80cm Induction hob | • |
| AEG 90cm chimney style stainless steel cooker hood | • |
| AEG Built in fridge freezer low frost 50/50 split | • |
| AEG built-in stainless steel double oven | • |
| AEG fully integrated dishwasher | • |
| AEG integrated undercounter wine cooler | • |
| Choice of contemporary / traditional ceramic floor tiling | • |
| Choice of quartz worktop & upstand with undermount worktop sink with drainer grooves | • |
| Chrome mixer tap | • |
| Luxurious fully fitted kitchen by Nixons | • |
| Matching quartz splash-back to hob | • |
| Under wall unit strip lighting | • |
| Utility / Bootroom | |
| Choice of 40mm premium worktops with matching 100mm upstands | • |
| Choice of contemporary / traditional ceramic floor tiling | • |
| Fitted units to match kitchen including seating area / coat rack | • |
| Stacked spaces for freestanding washer & dryer | • |
More Properties In This Development
Never Miss A Thing
Sign up to our New Homes News and be the first to find out about savings, as well as access developments before we promote to the public.